Aspire Home Model
Four Convenient Locations
One-Year Product Warranty on All Homes
Lifetime Service Warranty
Free Design Consultations
Hours:
Text
Msgs may be autodialed. Consent to texts not required to purchase our svcs. Msg. and data rates may apply.
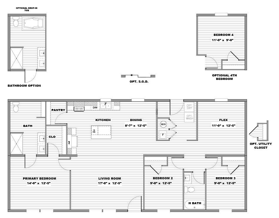
Aspire - 28 X 60
3 Beds • 2 Baths • 1,475 Sq. Ft.

Aspire: Your Dream Home Awaits
At Windham Homes, we're passionate about helping you achieve your dream of homeownership. Our Aspire line of manufactured homes offers the perfect blend of quality, affordability, and customization. With over 50 years of experience, we've been turning dreams into reality for families across Corinth, MS, and beyond. Our Aspire homes are designed to meet a wide range of needs and budgets, ensuring that everyone can find their perfect match.
Our Aspire collection includes:
- Single-wide manufactured homes
- Double-wide manufactured homes
- Triple-wide manufactured homes
- Custom-designed floor plans
Ready to start your journey towards your dream home? Reach out to us today, and let's explore the possibilities together.
Why Aspire to Home Ownership?
Owning a home is more than just having a roof over your head; it's about creating a space that's truly yours. Our Aspire homes offer numerous benefits that make homeownership not just attainable but desirable:
- Affordable options for every budget
- Customizable designs to suit your lifestyle
- Energy-efficient features for lower utility costs
- Modern amenities and finishes
- Faster move-in times compared to traditional construction
- Potential for property value appreciation
With an Aspire home from Windham Homes, you're not just buying a house; you're investing in your future and creating a space where memories will be made for years to come.
Why Choose Windham Homes
When you choose Windham Homes for your Aspire home, you're partnering with a company that puts your needs first. Here's why we stand out:
- One-year product warranty on all homes
- Lifetime service warranty
- Free design consultations
- Financing options
- Customized floor plans
- Best prices in the industry
- Licensed, bonded, and insured in MS, AL, and TN
- Home-owned and operated since 1972
- Over 50 years of experience
- Locally and family-owned business
- Clear project communication
- Variety of modifications available
- Work directly with local experts
Our commitment to quality, customer satisfaction, and personalized service sets us apart. We're not just selling homes; we're building communities and helping families achieve their dreams.
Contact Us
Your dream home is within reach, and we're here to help you every step of the way. Whether you're just starting to explore your options or you're ready to choose your perfect Aspire home, our team of experts is standing by. We'll guide you through the process, answer your questions, and help you find the home that fits your lifestyle and budget. Don't wait to start living in the home you've always wanted. Get in touch with Windham Homes today and take the first step towards your new Aspire home.
- Bullet text
- Bullet text
- Bullet text
- Bullet text
- Bullet text
- Bullet text
- Bullet text
- Bullet text
- Bullet text
- Bullet text
Title or Question
Describe the item or answer the question so that site visitors who are interested get more information. You can emphasize this text with bullets, italics or bold, and add links.Title or Question
Describe the item or answer the question so that site visitors who are interested get more information. You can emphasize this text with bullets, italics or bold, and add links.Title or Question
Describe the item or answer the question so that site visitors who are interested get more information. You can emphasize this text with bullets, italics or bold, and add links.
Contact Windham Homes today.
Not valid with any other offers or promotions. Restrictions apply.
Must mention this coupon at the time of scheduling.
Title or Question
Describe the item or answer the question so that site visitors who are interested get more information. You can emphasize this text with bullets, italics or bold, and add links.Title or Question
Describe the item or answer the question so that site visitors who are interested get more information. You can emphasize this text with bullets, italics or bold, and add links.Title or Question
Describe the item or answer the question so that site visitors who are interested get more information. You can emphasize this text with bullets, italics or bold, and add links.
Gallery Heading H2

Reviews
We offer flexible financing solutions. Get the home you want with payments that fit your budget.









